Avanti St Development Application Drawings
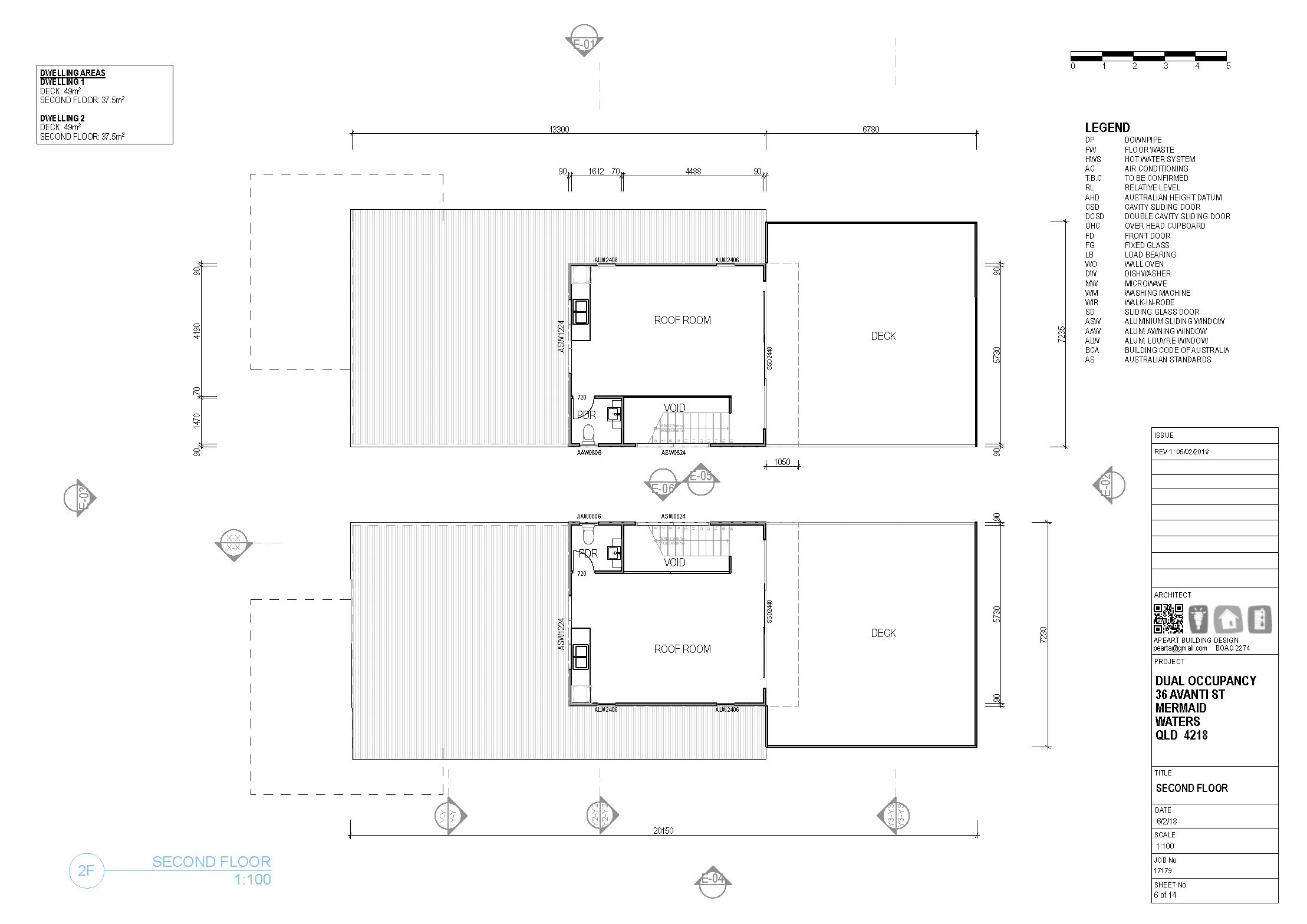
A project drawn earlier in the year for A Peart, which involved Development Applications for a Subdivision and detached "duplex" for a proposal in Mermaid Waters. Working Drawings now close to completion.
A project drawn earlier in the year for A Peart, which involved Development Applications for a Subdivision and detached "duplex" for a proposal in Mermaid Waters. Working Drawings now close to completion.